Το Apartment Lavendelgrün είναι σε Altenbamberg. Σε απόσταση 32 χλμ από το σημείο ενδιαφέροντος Όρος Donnersberg, το κατάλυμα διαθέτει βεράντα και δωρεάν ιδιωτικό χώρο στάθμευσης. Το Apartment Lavendelgrün περιλαμβάνει 1 υπνοδωμάτιο, 1 μπάνιο με στεγνωτήρα μαλλιών, σαλόνι, καθώς και κουζίνα με ψυγείο. Το μπάνιο διαθέτει ντους. Αν θέλετε να εξερευνήσετε τη γύρω περιοχή, μπορείτε να κάνετε δραστηριότητες όπως ποδηλασία. Το αεροδρόμιο Αεροδρόμιο Φρανκφούρτης Hahn είναι 69 χλμ μακριά από το κατάλυμα.

Οι αποστάσεις στην περιγραφή του καταλύματος υπολογίζονται με τη χρήση του OpenStreetMap©

Πλεονεκτήματα καταλύματος

Κορυφαία τοποθεσία: με υψηλή βαθμολογία από πρόσφατους επισκέπτες (8,0)

  • Διατίθεται δωρεάν ιδιωτικός χώρος στάθμευσης στον χώρο του καταλύματος


Διαθεσιμότητα

Επιλέξτε ημερομηνίες για να δείτε τη διαθεσιμότητα και τις τιμές του καταλύματος

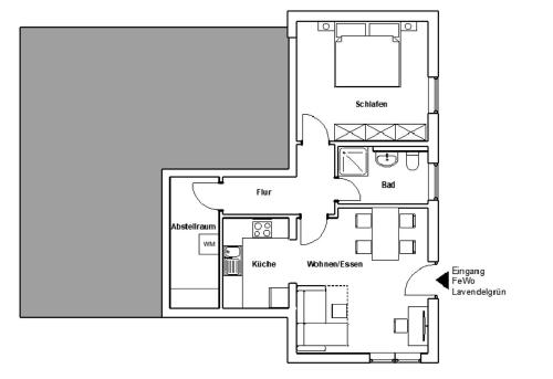
Τύπος καταλύματος
Αριθμός επισκεπτών
 
Υπνοδωμάτιο
1 μεγάλο διπλό κρεβάτι
Σαλόνι
1 καναπές κρεβάτι
Προέκυψε κάποιο πρόβλημα. Παρακαλούμε προσπαθήστε πάλι αργότερα.

Σχόλια επισκεπτών

Κατηγορίες:

Προσωπικό
Παροχές
Καθαριότητα
Άνεση
Σχέση ποιότητας/τιμής
Τοποθεσία

Επιλέξτε θέμα για να διαβάσετε σχόλια:

Τι άρεσε στους επισκέπτες που έμειναν εδώ

  • Gerd
    Γερμανία Γερμανία
    «Eine sehr schöne Ferienwohnung mit kleiner Terrasse und am Abend mit sehr schönen Blick auf die angestrahlte Burg Altenbamberg. Vom Gartenstuhl schaut man auf den Garten des Vermieters und ist dennoch für sich. Da wir gerne kochen, war dies auch...»
  • Hans
    Κάτω Χώρες Κάτω Χώρες
    «Het appartement was volledig ingericht, heel netjes schoon, en keurig ingericht.»
  • Christel
    Γερμανία Γερμανία
    «Die Ferienwohnung war sehr schön und sehr gut ausgestattet.»
  • Michael
    Γερμανία Γερμανία
    «Ruhige Lage in einem Neubaugebiet. Schön dass es auch eine kleine Terrasse gibt. Wir waren für 4 Nächte dort. Die Ausstattung ist auch für einen längeren Aufenthalt geeignet. Geschmackvolle Einrichtung. Ein separater Kellerraum mit Waschmaschine...»
  • Thomas
    Γερμανία Γερμανία
    «Sehr liebevoll und topp ausgestattete, moderne FeWo. Es hat an nichts gefehlt. Super ruhige Lage für Wandertouren in der Umgebung. (Hiwweltouren, Rotenfels) Ich würde die FeWo jederzeit erneut besuchen.»

Αξιολόγηση ποιότητας

Η Booking.com αξιολόγησε την ποιότητα αυτού του καταλύματος με 3 στα 5, με βάση παράγοντες όπως οι παροχές, το μέγεθος, η τοποθεσία και οι παρεχόμενες υπηρεσίες.

Περιοχή καταλύματος

Κανονισμοί καταλύματος

Το Apartment Lavendelgrün δέχεται ειδικά αιτήματα - προσθέστε τα στο επόμενο βήμα!
Check-in
Από 3:00 μ.μ. έως 8:00 μ.μ.
Θα πρέπει να ενημερώσετε το κατάλυμα εκ των προτέρων τι ώρα θα φτάσετε.
Check-out
Από 8:00 π.μ. έως 12:00 μ.μ.
Ακύρωση/ προπληρωμή
Οι πολιτικές ακύρωσης και προπληρωμής διαφέρουν ανάλογα με τον τύπο καταλύματος. Παρακαλούμε εισαγάγετε τις ημερομηνίες της διαμονής σας και ελέγξτε τους όρους της επιλογής που ζητήσατε.
Πολιτική για ζημιές
Σε περίπτωση που προκαλέσετε ζημιά στο κατάλυμα κατά τη διαμονή σας, μπορεί να σας ζητηθεί να πληρώσετε έως και € 100 μετά το check-out, σύμφωνα με την Πολιτική για ζημιές του καταλύματος.
Παιδιά και κρεβάτια

Πολιτικές σχετικά με τα παιδιά

Δεν επιτρέπονται τα παιδιά.

Πολιτικές για βρεφικές κούνιες και επιπλέον κρεβάτια

Αυτό το κατάλυμα δεν διαθέτει βρεφικές κούνιες και επιπλέον κρεβάτια.

Χωρίς περιορισμό ηλικίας
Δεν υπάρχουν περιορισμοί ηλικίας για το check-in
Πληρωμές από την Booking.com
Η Booking.com λαμβάνει την πληρωμή σας εκ μέρους του καταλύματος για αυτήν τη διαμονή, αλλά βεβαιωθείτε ότι θα έχετε μαζί σας και μετρητά για τυχόν επιπλέον έξοδα που προκύψουν εκεί.
Πολιτική καπνίσματος
Δεν επιτρέπεται το κάπνισμα.
Πάρτι
Δεν επιτρέπονται τα πάρτι ή/και οι εκδηλώσεις
Ώρες ησυχίας
Οι επισκέπτες πρέπει να τηρούν τις ώρες ησυχίας που είναι μεταξύ 10:00 μ.μ. και 7:00 π.μ.
Κατοικίδια ζώα
Τα κατοικίδια δεν επιτρέπονται.

Ψιλά γράμματα

Σημαντικές πληροφορίες σχετικά με αυτό το κατάλυμα

Παρακαλείστε να ενημερώσετε το Apartment Lavendelgrün εκ των προτέρων σχετικά με την αναμενόμενη ώρα άφιξής σας. Μπορείτε να χρησιμοποιήσετε το πεδίο για Ειδικά Αιτήματα κατά την κράτηση, ή να επικοινωνήσετε απευθείας με το κατάλυμα, στα στοιχεία επικοινωνίας που αναγράφονται στην επιβεβαίωσή σας.

Αυτό το κατάλυμα δεν φιλοξενεί μπάτσελορ ή αντίστοιχα πάρτι.

Οι ώρες ησυχίας είναι μεταξύ 22:00:00 και 07:00:00.

Οι επισκέπτες κάτω των 18 ετών μπορούν να κάνουν check-in μόνο μαζί με κάποιον γονέα ή επίσημο κηδεμόνα.

Σε περίπτωση που προκαλέσετε ζημιά στο κατάλυμα κατά τη διαμονή σας, μπορεί να σας ζητηθεί να πληρώσετε έως και € 100 μετά το check-out, σύμφωνα με την Πολιτική για ζημιές του καταλύματος.